Szafki naścienne SENSA zostały wyprodukowane z naciskie na niezawodność działania oraz atrakcyjną cenę.
Górna i dolna pokrywa posiada perforację dla lepszego obiegu powietrza.
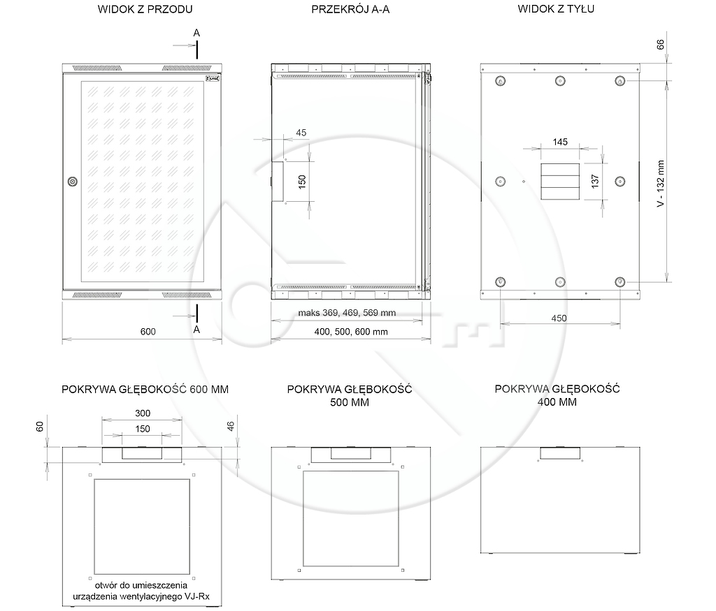
Wprowadzenie okablowania możliwe jest w sufiicie, podłodze, po bokach oraz tylnej ściance. Drzwi wyposażone są w zamek zamykany na klucz oraz ukryte zawiasy.

Warianty produktowe:
Wysokość: 6, 9, 12, 15, 18, 21U
Szerokość: 600 mm
Głębokość: 400, 500, 600 mm
Konstrukcja:
Grubość blachy 1,3 mm, 1,5 mm szyny rack ocynkowane
Nośność:
Standard 45 kg (obciążeni równomierne)
Ochrona IP:
IP20
Kolory:
Malowane proszkowo w kolorze szarym RAL7035
Drzwi:
Metalowe lub z bezpiecznym szkłem (EN 12150-1)
Standardowa konfiguracja
- 1 para przesównych profili pionowych 19" (kolejna para na życzenie)
- 1 drzwi z zamkiem i ukrytymi zawiasami
- w suficie i podłodze szafki perforacje ułatwiające wentylacje
- wyprowadzenie okablowania możliwe w suficie, ściankach bocznych i po bokach po wyłamaniu zaślepek
Szafa montowana jest na ścianie przez otwory znajdujące się na tylnej części szafy.
Akcesoria
Szafki można zamówić wraz z akcesoriami np. Zaślepki organizery kabla, itp.